Kategória
    Výrobce
      Blog
        Produkty
          Nenájdené žiadne produkty.
          Kontakt na technika
          Používateľ
          Menu

          SENSA-12U-66-11-G

          Solarix

          Rozvádzač nástenný SENSA 12U 600mm, dvere sklo, RAL 7035

          Pre zobrazenie informácií je nutné byť prihlásený

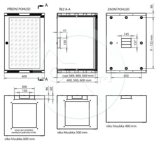
           Nástenná dátová skriňa  SENSA nitovanej konštrukcie, je rozvádzač pri ktorého výrobe bol kladený dôraz na spoľahlivosť a výhodnú cenu.

          V hornom a spodnom veku rozvádzača je umiestnená perforácia pre ľahké odvetrávanie vnútorného zariadenia.
          Vstup káblov je riešený vylamovacími otvormi umiestnenými v strope, dne, ďalej na bočných stranách rozvádzača a tiež v jeho chrbte.
          Dvere sú osadené zámkom s dvoma kľúčmi a skrytými otočnými závesmi.
           
          Vyrábané varianty
          Výška: 6, 9, 12, 15, 18U, 21U
          Šírka: 600 mm
          Hĺbka: 400, 500, 600 mm
          Konštrukcia:
          plech hrúbky 1,3mm, nosnej lišty 1,5mm pozink
          Nosnosť: 
          štandard 45 kg (rovnomerné zaťaženie)
          IP krytie: 
          štandard IP20
          Farebné prevedenie: 
          prášková farba v odtieni RAL 7035 šedá
          Dvere:
          v prevedení plechové alebo s bezpečnostným sklom (EN 12150-1)
           
          Štandardná konfigurácia
          - 1 pár posuvných 19" vertikálnych líšt (ďalší pár na vyžiadanie)
          - 1 dvere so zámkom a skrytými závesmi
          - vo vrchnej a spodnej časti skrine perforácie pre ľahké odvetrávanie
          - pripravené stupy pre kabeláž v strope, dne aj na bočných stranách skrine formou vylamovacích otvorov.
          Uchytenie skrine na stenu sa vykonáva cez otvory v zadnej stene skrine.
           
          Príslušenstvo
          K skrini je možné priobjednať veľké množstvo príslušenstva, ako sú záslepky, vyväzovacie panely a mnoho ďalších
          VF-12U-SENSA
          Solarix
          Pre zobrazenie informácií je nutné byť prihlásený
          Kontakt na technika
          História navštíveného tovaru
          Produkt ste už hodnotili

          Košík obsahuje nepovolené položky

          Košík je prázdny

          Zobraziť košík

          Tovar bol pridaný do porovnania

          Prosím, čakajte...
          Objednávku nemožno dokončiť, skúste to, prosím, neskôr

          Kontaktujte nás

          Chcete nám niečo povedať o našich produktoch alebo e-shope? Neváhajte napísať.

          Súhlas so spracovaním osobných údajov je povinné pole

          Správa bola odoslaná