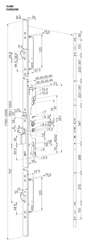
Elektromechanický samozamykací úzký vícebodový zámek, backset 35 mm, rozteč 92 mm, délka čelního štítu 1760 mm, 12-24V DC
Použití
Výhody
Certifikace
Funkce zámku
Možnosti nastavení zámku - ovládání prostupu
“0“ – fail secure
“1“- fail safe – funkce EPS
“2“- fail secure
“3“- fail safe – funkce EPS
Nastavení zámku je možné provést před montáží do dveří. Nastavovací prvky jsou přístupné z venkovní strany zámku s použitím imbusového klíče, který je součástí balení každého zámku.
Nastavení "1" a "3" se používá na požárních dveřích, které jsou napojeny na EPS. V případě signálu z EPS je možno dveřmi procházet, při dovření dveří jsou dveře uzamčeny.
Poznámka:
| Napájení |
Napájení
12 - 24 V DC (-10%, +15%) |
| Odběr nominální |
Odběr nominální
Nominal 0,13 A (12 V); 0,065 A (24 V) |
| Odběr maximální |
Odběr maximální
Max 0,35 A |
| Rozsah pracovních teplot |
Rozsah pracovních teplot
-20°C až +60°C |
| Signalizace |
Signalizace
a) závora zatažená b) závora vysunutá c) klíč odemyká/volný d) klika stisknutá/volná e) dveře otevřené/zavřené |
| Výsuv závory |
Výsuv závory
20 mm, 10 mm (střelka), 24 mm (háky) |
| Backset |
Backset
35 mm |
| Šířka štítu |
Šířka štítu
24 mm |
| Čtyřhran |
Čtyřhran
9 mm, s redukcí lze použít i 8 mm |
| Povrchová úprava |
Povrchová úprava
štít zámku z nerez oceli |
| Cylindrická vložka |
Cylindrická vložka
DIN - europrofil |
| Bezpečnostní kování |
Bezpečnostní kování
Klika - klika; DIN - rozteč 92 mm |
| Balení obsahuje |
Balení obsahuje
zámek, návod, upevňovací šrouby, redukce z 9 na 8 mm, imbusový klíč |

Chcete nám něco sdělit o našich produktech nebo e-shopu? Neváhejte napsat.