
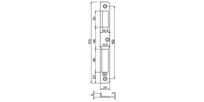
Elektromotorický, samozamykací zámok s externou ústredňou EA420, rozteč 92mm. backset 35mm
Výhody
Popis funkcií zámku
Prevádzkové režimy
Certifikácia
Viac informácií na katalog.fab.cz:8686/Produkty/ELEKTRO/ 01_SAMOZAMYKACI_ZAMKY_ABLOY/EL420/
| Napájanie |
Napájanie
12 - 24 V DC +/- 15 % 12 - 18 V AC -10 %/+15 % |
| Odber nominálny |
Odber nominálny
12V - 80 mA v klidu; 450 mA běžný pohyb, 24V - 40 mA v klidu; 220 mA běžný pohyb |
| Odber maximálny |
Odber maximálny
12V - 1300 mA max., 24V - 600 mA max. |
| Nastaviteľná doba otvorenia |
Nastaviteľná doba otvorenia
2 - 15 sekund |
| Rozsah pracovných teplôt |
Rozsah pracovných teplôt
-20°C až +60°C |
| Signalizácia |
Signalizácia
a) závora zatažená b) závora vysunutá c) klíč odemyká/volný d) klika stisknutá/volná e) dveře otevřené/zavřené |
| Výsuv závory |
Výsuv závory
20 mm |
| Backset |
Backset
standardně 30, 35 a 45 mm na objednávku 40 mm |
| Šírka štítu |
Šírka štítu
24 mm |
| Štvorhran |
Štvorhran
9 mm, s redukcí lze použít i 8 mm |
| Povrchová úprava |
Povrchová úprava
štít zámku z nerez oceli |
| Cylindrická vložka |
Cylindrická vložka
DIN - europrofil |
| Bezpečnostné kovanie |
Bezpečnostné kovanie
Klika - madlo DIN - rozteč 92 mm |
| Balenie obsahuje |
Balenie obsahuje
zámek, externí ústřednu a návod, upevňovací šrouby, imbusové klíče |

Chcete nám niečo povedať o našich produktoch alebo e-shope? Neváhajte napísať.